Не упустите свой шанс приобрести готовый проект дома со скидкой 50% в Самаре!
площадь дома
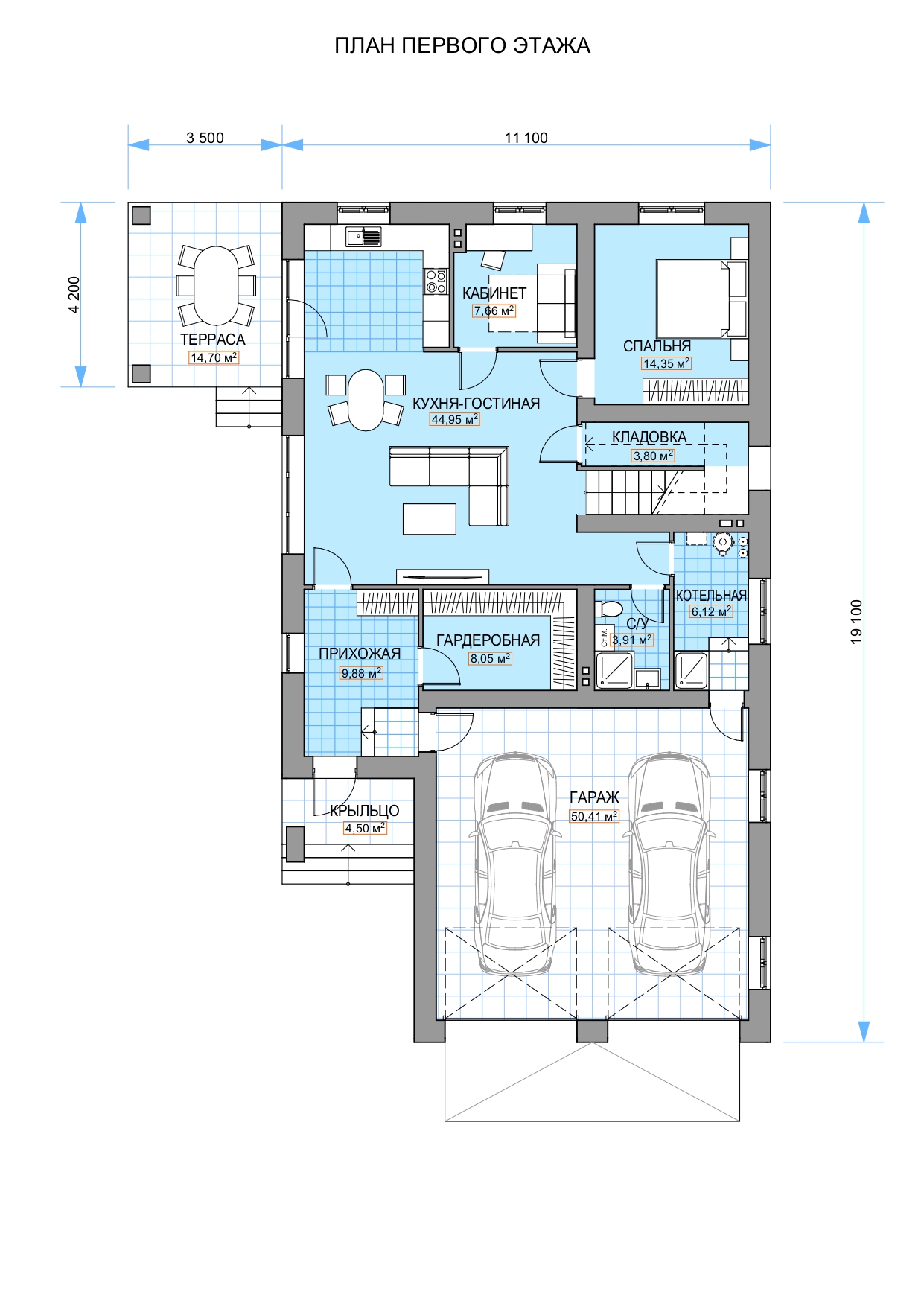
Представляем вашему вниманию двухэтажный дом общей площадью 240 м², из которых 50 м² занимает пристроенный гараж на два автомобиля. Таким образом, жилая площадь дома составляет 190 м². Архитектурное решение выполнено в классическом стиле: фасад из керамического кирпича, спокойный и сдержанный, дополнен аккуратными рустами, кирпичными колоннами и декоративной вертикальной кладкой. Дом выглядит гармонично и основательно, без излишней вычурности.
На первом этаже располагается гараж, из которого можно попасть как в дом, так и сразу в котельную. Такое решение особенно удобно для инженерных служб — оборудование можно обслужить, не заходя в жилые помещения. Кроме того, здесь предусмотрены гостевая комната, кабинет, санузел, а также просторная кухня, совмещённая с гостиной. Гостиная включает диванную зону с большим витражным окном, открывающим вид на сад. Из кухни традиционно предусмотрен выход на небольшую террасу, где можно проводить семейные завтраки или вечера на свежем воздухе.

Второй этаж выполнен в классической компоновке: мастер-спальня со своим выходом в большую гардеробную, две детские комнаты, вместительная ванная и отдельная постирочная. Такое решение обеспечивает удобство повседневной жизни: у родителей есть собственная приватная зона, а у детей — просторные комнаты, где можно разместить не только спальные места, но и рабочие зоны или уголки для игр.
Дом объединяет в себе классический архитектурный стиль и продуманную планировку, делая его комфортным и практичным вариантом для постоянного проживания семьи.
